Restaurants Builders | Est. 2000
BUILDING THE FUTURE OF
HOSPITALITY.
Specialized Hospitality Construction Specialists. Bridging architectural engineering with the specialized needs of restaurants, cafés, and factories since 2000.
Solutions
Comprehensive Engineering & Contracting.
01

Design & Conception
Creating and developing initial conceptions for internal and external items.
02

Project Planning
Budget determination, technical specifications, and quantity surveying.
03

Implementation
Full-scale implementation covering building, equipping, and mechanical works.
04

Timeline Management
Conceptualizing and managing project timetables for efficient delivery.
05

Quality Assurance
Commitment to quality and post-delivery guarantees for longevity.
06

Specialized Works
Food factory processing and specialized high-traffic mechanical works.
PROCESS
The EMCON Recipe for Hospitality Success.
Our specialized process is the proven formula for turning your culinary vision into a thriving, compliant, and profitable reality. We don't just build restaurants; we bake in operational excellence from the ground up.
The Ingredients: Essential Steps for a Perfect Build
01
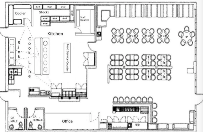
Commercial Kitchen Design
(THE HEART OF THE DISH)
Expert kitchen layouts optimized for workflow efficiency, from prep stations to cooking lines, ensuring health code compliance and operational excellence.
Recipe Refinement:
We ensure your kitchen flow is as seamless as a master chef movements, maximizing speed and minimizing waste.
02
Dining Space Planning
(THE PRESENTATION)
Strategic seating layouts, ambiance design, and guest flow planning that maximize capacity while creating memorable dining experiences.
Recipe Refinement:
We blend aesthetics and function to create an inviting atmosphere that encourages longer stays and repeat visits, all while optimizing your table turnover rate.
03
Full Restaurant Build-Out
(THE FINAL ASSEMBLY)
Complete construction from foundation to fixtures—structural work, HVAC, plumbing, electrical, kitchen equipment installation, and dining area finishing.
Recipe Refinement:
This is the complete, turnkey delivery. We handle every detail, ensuring all systems (structural, mechanical, and aesthetic) are perfectly integrated and ready for service.
The Secret Sauce: Our Specialized Value-Adds
01
Fast-Track Delivery
(THE QUICK-RISE YEAST)
Accelerated construction timelines for restaurant openings and remodels, minimizing your time-to-revenue while maintaining quality standards.
Secret Sauce:
Our specialized process cuts weeks off the traditional timeline, allowing you to start serving and earning faster. We deliver quality at speed.
02
Health & Safety Compliance
(THE QUALITY CONTROL CHECK)
Complete adherence to food safety regulations, fire codes, and health department requirements with comprehensive documentation and certifications.
Secret Sauce:
We guarantee compliance. Our deep knowledge of Egyptian F&B regulations ensures your project passes inspection the first time, eliminating costly delays and reworks.
03
Multi-Location Rollout
(THE BATCH PRODUCTION)
Standardized construction processes for restaurant chains expanding across multiple locations, ensuring brand consistency and operational efficiency.
Secret Sauce:
We create a repeatable, scalable blueprint for your brand. This standardization guarantees that your 10th location is built with the same precision and speed as your first.
______
LET'S BUILD YOUR RESTAURANT.
Ready to bring your dining concept to life? Our team of restaurant construction specialists is here to turn your culinary vision into a thriving reality. Let's start building.
Head Office
Villa 534 Abdullah Al-Nadeem St., next to Fatima Al-Sharbatly Mosque, 5th Settlement, Cairo, Egypt